时间:2020-03-17来源: 作者:admin1 点击:
在我们的选房过程中,关于究竟是选中间户还是边户的问题,一直是很多小伙伴所纠结的,中间户有什么特点,怎么装修比较好?下面跟随辉达注册旗哥一起了解一下吧。
买房最重要的两点,一是看小区的位置,二是看户型的优劣,前者决定交通、孩子上学、社区环境,而后者则是决定整体入住的体验感舒适度。

在我们的选房过程中,关于究竟是选中间户还是边户的问题,一直是很多小伙伴所纠结的,今天辉达注册旗哥就来给大家分析一下。
中间户优劣势
对房型有研究的小伙伴一定都知道,边户南北通透,通风良好,一直以来是最热销的房型,但边户也是最贵的。

对于预算有限的朋友,中间户就成了一个纠结的对象。

1
中间户的优势:
①户型相对来说方正一点。
②面积适中,边户一般都是大户型。
③保温效果好。
④价格上要低于边户,通常价格东边户>西边户>中间户。
⑤南边的边户,居室朝阳面多。

2
中间户的缺点:
①通风差,由于房子的一边面对着电梯房,无空气对流。
②有异味,很多中间户存在暗厨暗卫,且通风效果也不好,如果不好好处理,容易有异味。
③采光差,房型靠内侧的空间采光差。
④噪音高,边户只有一个邻居,中间户两边都是邻居,且靠近电梯间位置,来往人多。
⑤隐私性差,中间户很多都没有玄关,且入户门与电梯间近,如果想开门通风,邻居走来走去,直接能看见你家里。
这么一看,优势与劣势以5:5的比例展开,确实让人纠结...

辉达注册旗哥觉得,中间户买是肯定可以买的,只要你在装修时解决以上那些问题!
中间户装修攻略
只说问题,不提解决方法的行为都是耍流氓!刚才我们说了5点中间户的问题,辉达注册旗哥来帮你解决。
1
通风差
按顺序,咱们先来说说通风差的问题。
?解决方法一:买高层


高层风速大,即使南北不通透,通风效果也会比较好。
?解决方法二:减少实体墙
1、封阳台,打通阳台与客厅之间的墙体,可有效改善通风和采光

注意
①客厅与阳台之间,只有非承重墙体才能拆。
②打通前要与物业确认好,避免物业不允许造成损失。
③如果选择打通,窗户密封性与阳台防水要做好。
④建议选择柔性较好的防水涂料,阳台墙面防水要做30cm。
关于打通阳台,可参考文章——把客厅和阳台打通后,我赚回了好几万!
2、打通隐私性要求低的区域之间墙体。



如客厅与餐厅之间,客厅与休闲区域之间、或餐厅与厨房之间。

如开放式厨房的设计,也可有效解决暗厨等厨房的通风问题。

之前有小伙伴留言说,厨房没有门无法开通天然气,关于这一点,每个地区都不一样,设计前要了解当地政策哦。

对于厨房无法做开放式的情况,小伙伴们也可以选择扩大厨房门洞,采用折叠门,也可有改善通风哦。
注意:上述所有砸墙行为,都要是非承重墙体才可以。
?解决方法三:新风系统


新风系统可以解决换气通风、除异味的问题,并且还有杀菌除尘的作用,是最有效的方法之一。

但是比其他方法的成本稍微高点,房屋按100㎡考虑,一套管道式新风系统的价格大概在1.5-3万元之间。
详细了解新风系统,可参考文章——新风系统可以去甲醛?扯淡!
2
除异味
关于中间户的异味,主要来源就是卫生间通风不好或下水道反味造成的,解决这个问题,我们可以这样做。
?解决方法一:排气扇


厨房卫生间都可以装。
?解决方法二:下水道存水弯


厨房水槽、卫生间面盆、马桶、淋浴区的下水道,都建议做“S型”或“U型”存水弯;可以防止排水管内的气体倒灌进室内。
?解决方法三:防臭型地漏

地漏要选防臭型地漏,卫生间推荐选择深水封地漏。

室内整体的除异味,上述说到的新风系统就可以解决。
3
隐私差
归根究底,很多中间户都没有玄关,才是隐私性差的根本原因,解决方法其实说起来很简单,加一个视线隔绝物品即可,如玄关柜或隔断;辉达注册旗哥带大家看一下两个常见的户型。
?户型一:一侧临墙

就比如上图中的户型,如果没有遮挡的话,从门口一眼就能看到你家的阳台,这样的情况,可以加一个玄关柜或加隔断都可以。

在不影响通道的情况下,可以在一定程度上隔绝视线。
设计参考 ↓↓↓


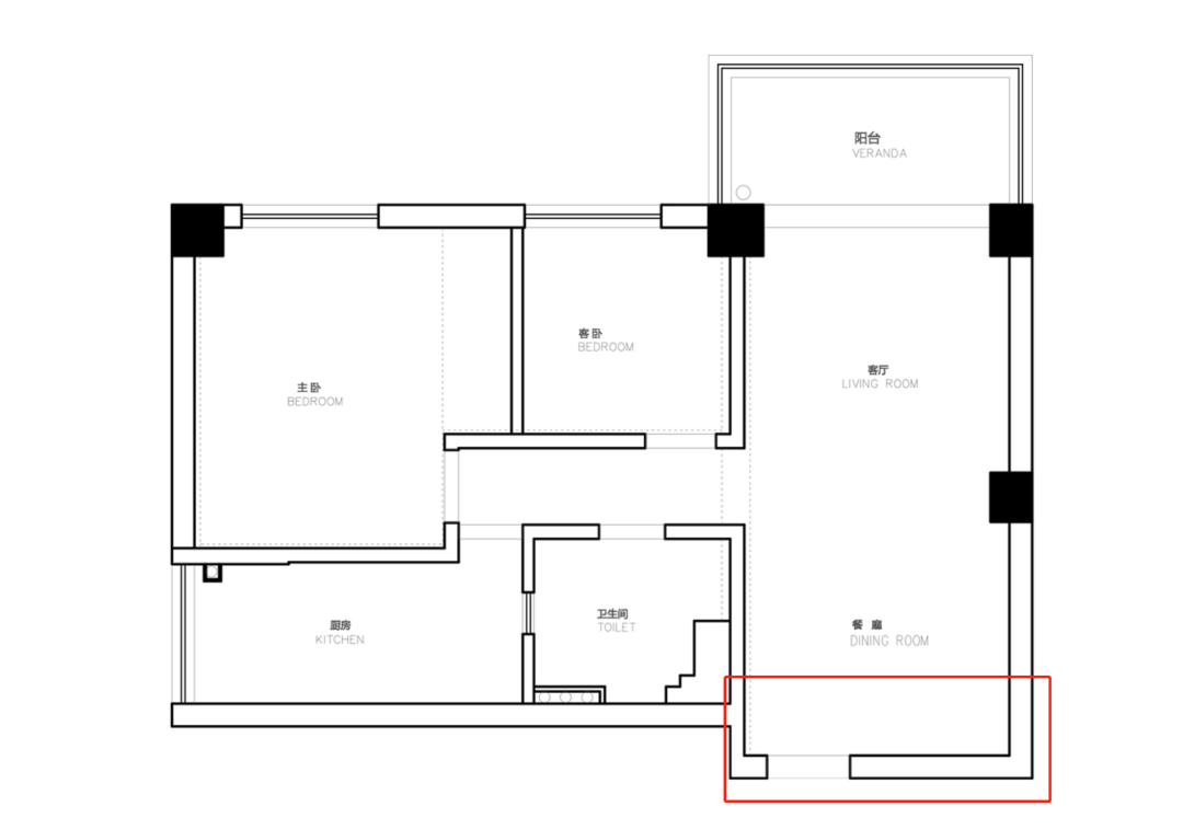
?户型二:门处于客餐厅之间

这种情况下,玄关柜(隔断)的位置可以选择加在 ↓↓↓

加在这个位置上图中红色框框的位置即可。
设计参考 ↓↓↓



4
噪音大
中间户面对左右夹击的两个邻居,噪音相对大点也是正常的,要想日常生活不受干扰,做好隔音是必要的。

1
隔音
①室内做隔音,可以从主要从门体、墙体、窗户入手。
②门体的隔音效果:实木>实木复合门>桥动力学板>蜂窝纸。
③窗户隔音,窗框材料选择上:塑钢>断桥铝>铝合金;玻璃材料选择,建议选择两层或两层以上的中空玻璃。
④门窗都可以再选择加隔音条。
⑤墙体隔音,可以选择在装修时填充隔音材料。
5
采光差
朝南的中间户,居室整体的朝南面还是比较多的,主要是靠在入户门内侧的空间采光可能会受影响。


改善这部分空间的采光,可多利用通透效果好的材质,如玻璃门、玻璃砖等。

只要做好了上面这5点,辉达注册旗哥觉得中间户也很可以!
以上就是辉达注册美学散热器小编总结的相关内容,有不足的地方欢迎指正、提出,希望能对大家的生活有帮助。如果想了解更多的信息,请多多关注辉达注册,辉达注册旗哥将给大家提供更全、更详细、更新的资讯信息。
CopyRight 2006-2017 © 北京辉达注册暖通科技有限公司
版权所有 All Rights Reserved
地址:北京市丰台区丽泽桥西美克大厦507 网站:www.szhuabotx.com 邮箱:jinqijian188@163.com 联系电话:13080222793